オーナー様へ

リフォーム・リノベーション

File. 29 大場邸101・102
東京都世田谷区上祖師谷6丁目
戸建
リビング
トイレ
浴室
キッチン
Point!スケルトンからのリノベーション
戸建を1F・2Fに分けて広々2LDKに変更しました。
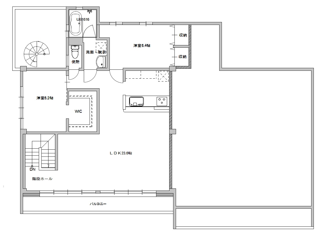
before

101 間取り

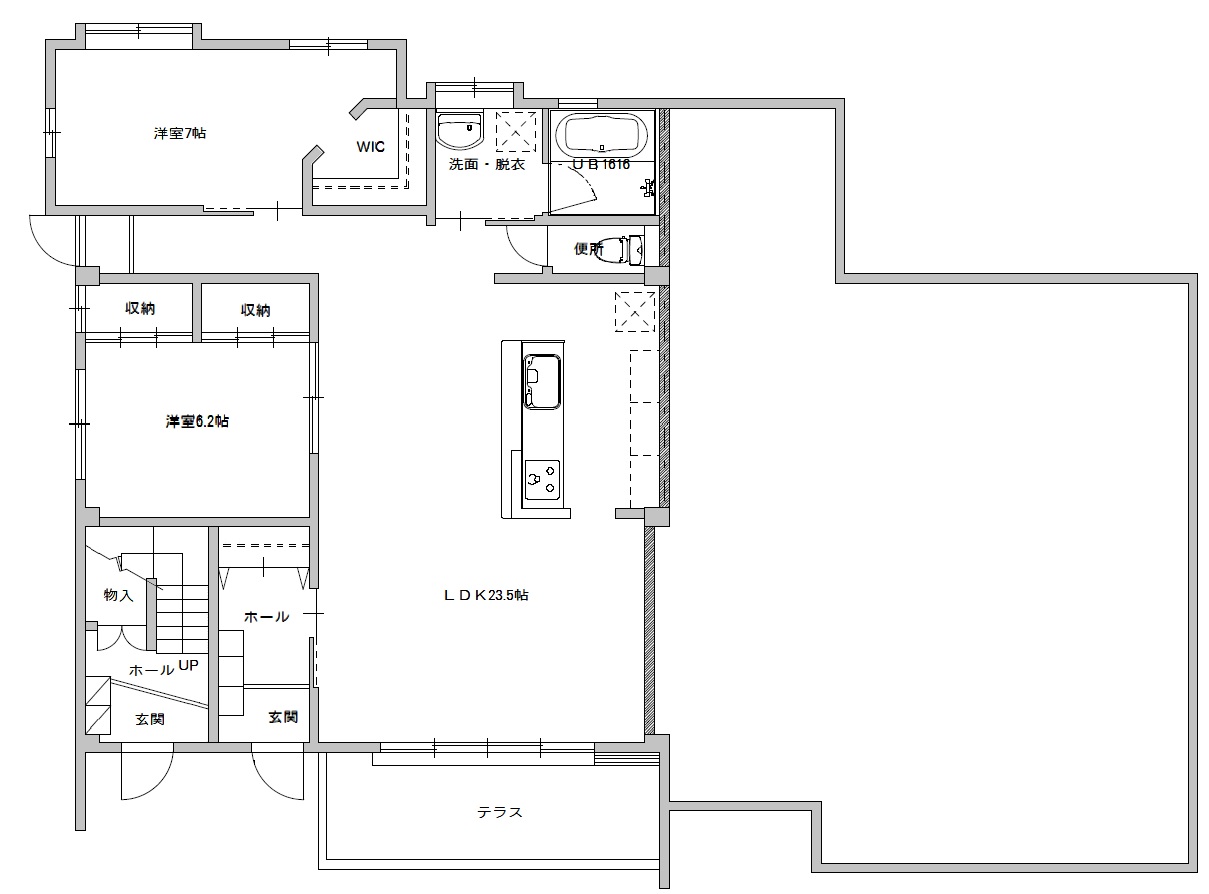
after

201 間取り

Point!リビングダイニング
before

101 リビングダイニング

after

201 リビングダイニング

Point!洋室
before

101 洋室

after

201 洋室

Point!キッチン
before

101 キッチン

after

201 キッチン

Point!浴室
before

101 浴室

after

201 浴室

Point!洗面台
before

101 洗面台

after

201 洗面台

Point!トイレ
before

101 トイレ

after

201 トイレ

Point!収納
before

101 収納

after

201 収納

Point!玄関
before

101 玄関

after

201 玄関

Point!ウッドデッキ/バルコニー
before

101 ウッドデッキ

after

201 バルコニー

リフォーム・リノベーション一覧へ戻る お問い合わせはこちら